项目地点:吴江绿地香奈(复式)
项目面积:169㎡
项目风格:极简高级灰
项目性质:别墅整装
项目状态:正在施工
写在前面的话
The Words Written In Front
本案这套复式,是父母给即将新婚的儿子儿媳准备的婚房,对装修的品质和效果要求都很高。所以,经同事介绍,找到了清水江南团队,属于又一套老客户转介绍项目。因是给小两口未来的婚房,整体设计以年轻人的意见为主,他们都喜欢当下流行的极简风,因此整体以高级灰为基调,通过精细的色彩搭配和功能规划,使空间呈现出平和安静、低调有质感的氛围。



世界在黑白之间,喧嚣在指尖之外。本案从入户开始,就由高级灰设计引领入内,营造宁静深邃的第一印象,让归家之路充满仪式与期待;双面柜的设计,打破户型局限,朝外是门厅衣帽柜,朝内是厨房冰箱位置,一举两得。
行走其间,有种“初极狭,才通人。复行数十步,豁然开朗”之感。#苏州清水江南怎么样##清水江南装饰零投诉#



餐厨面积虽小,却匠心独运。
隐藏式三联动移门,犹如空间魔法师,可开可合,让餐厅、厨房的联动随着居者的心意而变幻。取消常规餐桌,将餐桌与餐边柜合为一体,节省空间的同时,还能当岛台使用,灵活变换,干净高级。蒸烤箱、饮水机等家电巧妙内置,保持了空间整洁。


从客厅眺望餐厅,灰黑深邃诱人,白色点缀其间,深浅在光影交织下展现出极致的纯净。#清水江南别墅整装#




年轻人的生活方式逐渐新颖化,他们并不拘泥于某一特定空间,一切都考虑方便和舒适。故一楼的橫厅采取的是客厅+半开放式书房的设计,通过地台上隐藏的移门和边上的转轴开门即可实现完全打开与闭合的不同状态。
打开时,电脑能跟客厅的电视相连,享受游戏的极致体验;关上门时,又是一个独立空间,可做书房、客房使用。且,整个书房区域抬高,与楼梯第一踏齐平,地台铺设地板,区域划分十分强烈。



黑色/高级灰作为空间的主角,将自身气质毫无保留地赠予空间,神秘,深邃,夜一般的深沉。星点的浅木色、白色突出重围,用温润中和黑灰的冷冽,以轻盈过渡黑灰的深沉,层层递进,干净利落,现代艺术的张力跃然其间。


客餐厅背景采用联通的整体设计,大面的深灰色收纳柜,不止延伸了墙面,增加了空间的纵深,使空间看上去更大,还聚焦了视线,颇具份量感,沉稳又耐看。
木色电视柜的加入,形成深色与浅色的叠加,丰富了空间的层次和视觉语言。

这个角落的L型护墙板,与地台上的隐形门相连,极大强化了空间的整体感。而线性灯的引入,不止打破了深色饰面的沉闷感,还照亮了角落,为整个空间注入了活力。


楼梯光影轻舞,深浅木纹结构与白墙、玻璃和谐共生,回归空间纯粹韵律。设计以线面块为笔触,切割多样比例,立体与平面交织,层叠感官跃然眼前,营造温馨而富有层次的家居体验。




主卧套房,回归自我的纯粹,让人从忙碌的生活里获得短暂的逃离。灯带与线条的结合,凝练出几何的优雅灵动与组合变化,以细节打破空间的单调。简约素雅的黑白灰是空间的底色,营造出更加宁静与舒缓的氛围 ,让心不自觉也变得温柔起来。

阳台內扩,放大主卧空间感的同时,原移门位置的顶梁就变成了一个突兀的存在,为此吊顶在这做了斜角处理,从而将内外的顶面连接了起来,也让空间更具造型感和设计感。
阳台顶面的隐形晾衣架设计,除了满足年轻人随时方便晾晒的生活理念,也赋予了这个沉稳静谧的空间一份灵动的感觉。

原结构中主卫是没有墙体的,需后期砌墙,为此在规划墙体时设计老师把柜体的位置一并考虑了进来,这样柜体与墙体就变成了一个整体,一点也不突兀。转角位置的斜面柜设计,既化解了阳角的尖锐压抑,还多了一个用来展示主人喜爱小物件的空间。



卫生间的材质也更多采用了黑白对比的方式,不同的材质会体现不同的感受,洁净的白,素雅的灰,沉着的黑,加以轻奢的五金点缀,尽显高级质感。

壁龛、储物柜的设置既为实用,亦具装饰。巧妙化解结构中存在的水管,又多了收纳展示功能,让卫生间丰富了起来。



行至次卧,豁然开朗。暖白木饰面与暖调灯光交错,创造温暖的感知。明亮的空间与外部形成反差,深色的柜体又带来一丝稳重,形成一种微妙的平衡。


平面方案
Flat Plan

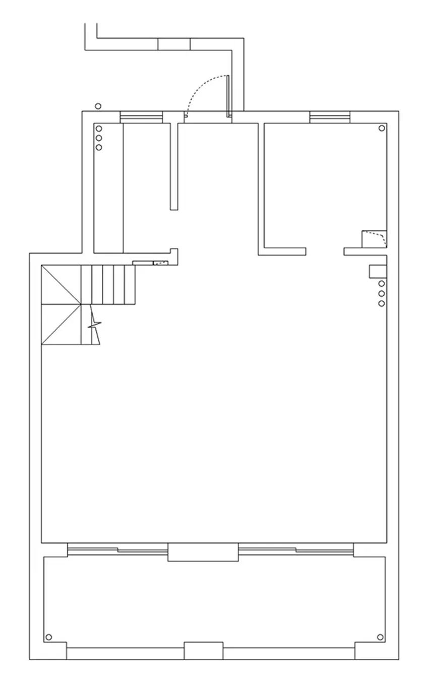
一楼原始户型图

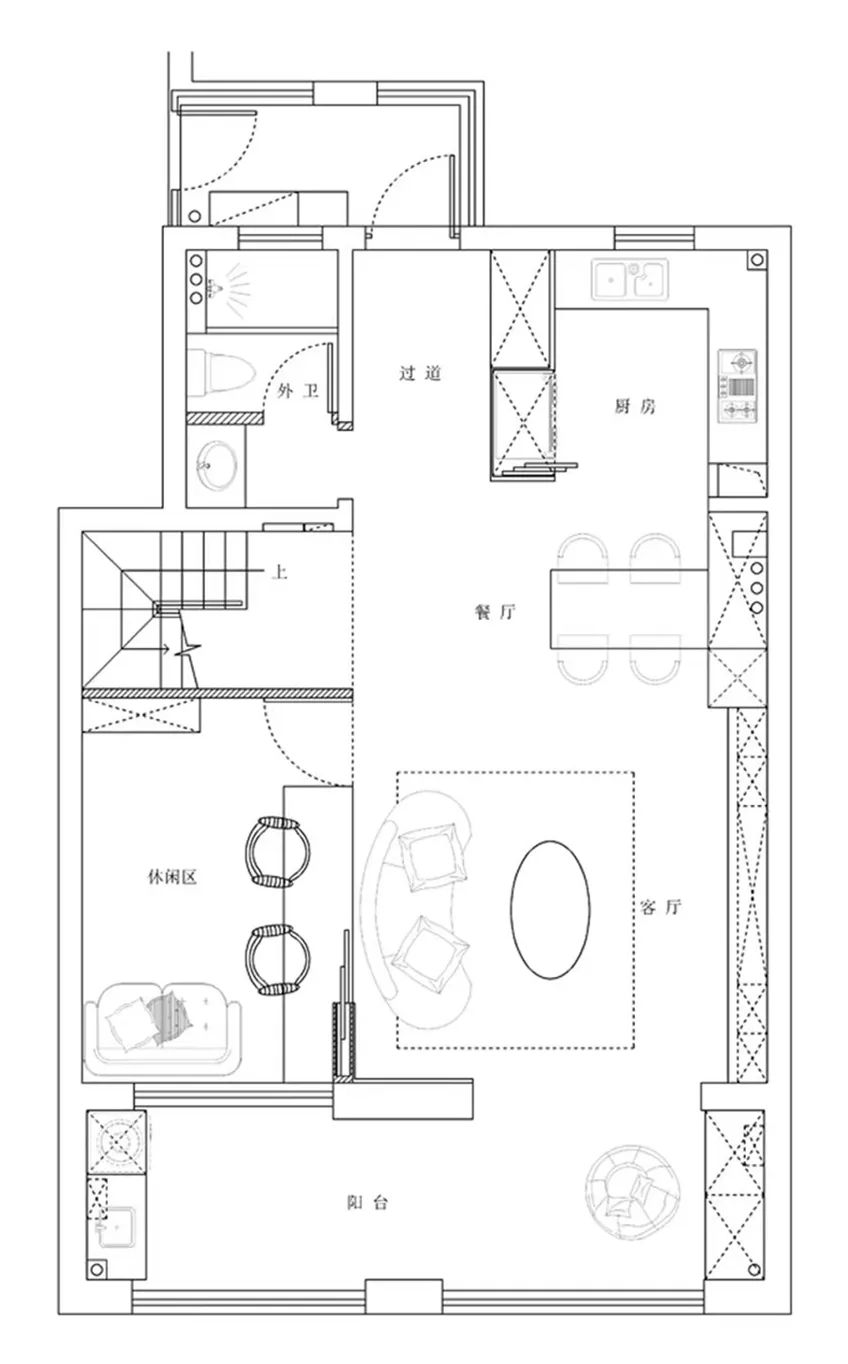
一楼改造后户型图

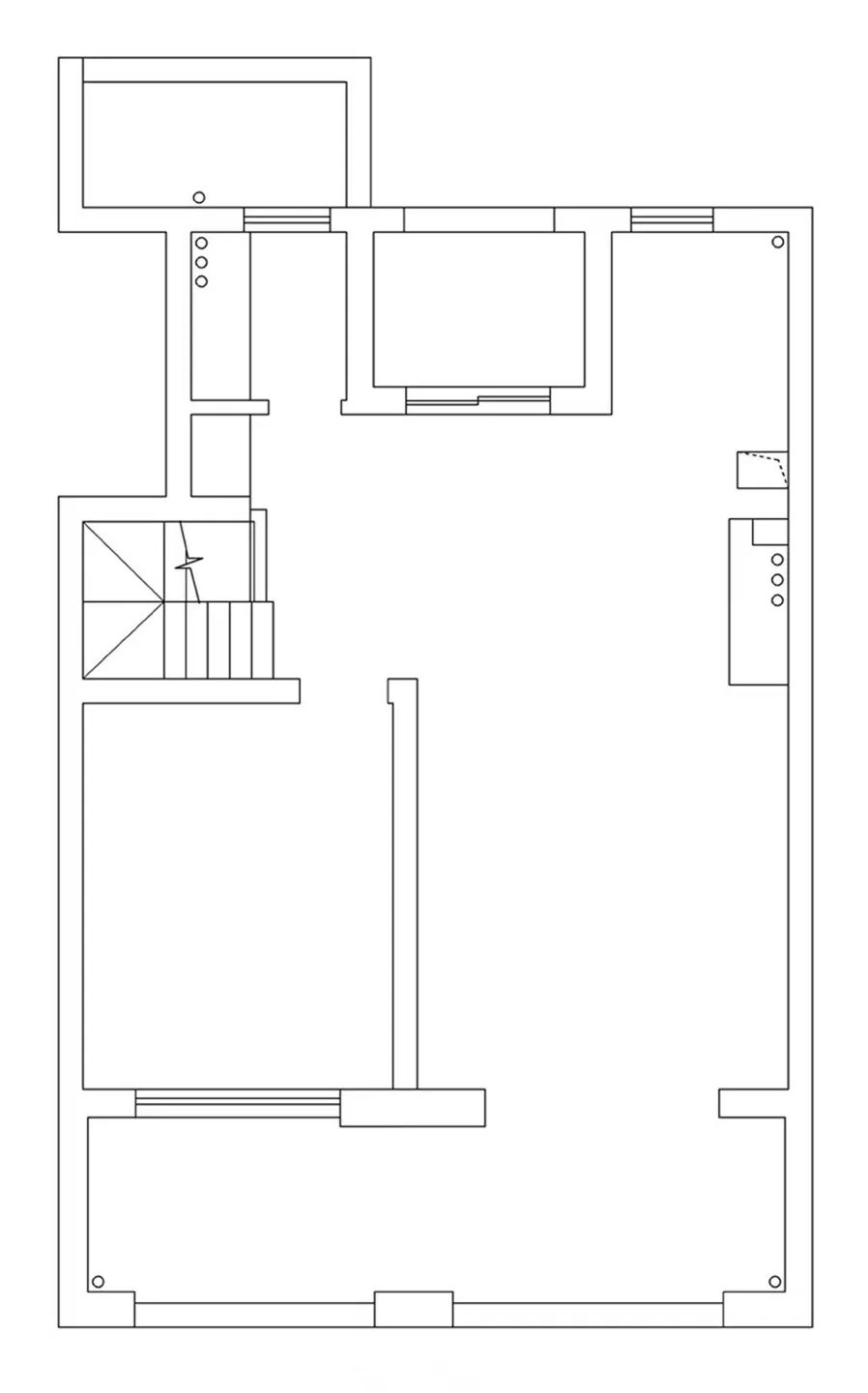
二楼原始户型图

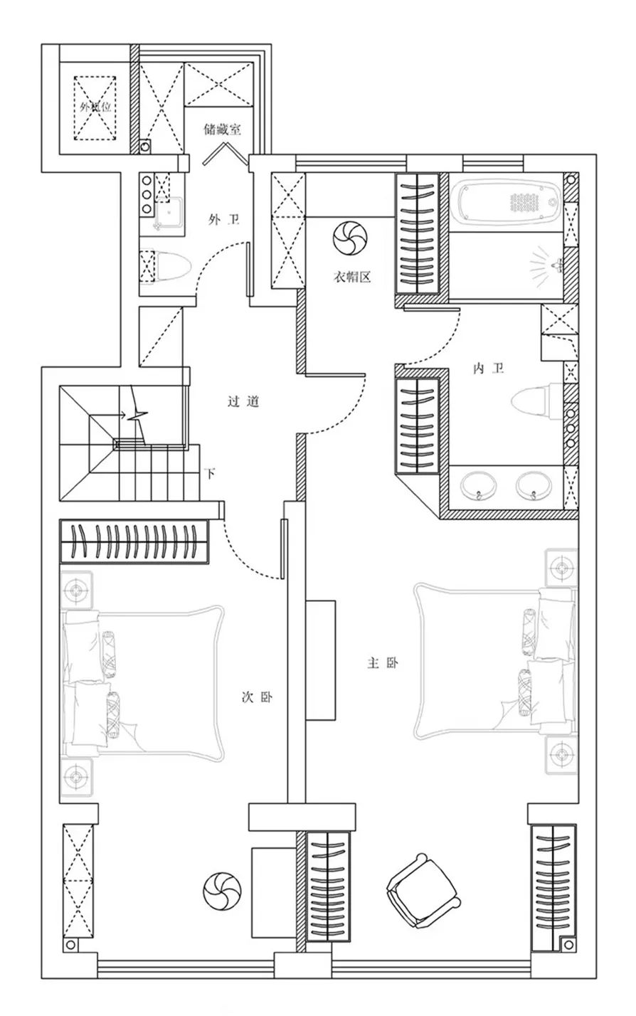
二楼改造后户型图
①将厨房西墙的部分墙体拆除,然后采取双向分割的柜体设计,从而同时满足玄关与厨房两大功能区的收纳需求;把厨房原有的单门洞拆除,改为三联动的移门设计,以释放餐厨之间的空间感。②一楼外卫采取干湿分离设计,提高了空间利用率。③把一楼原有的大横厅一分为二,一半做成抬高的开放式书房,一半规划成客厅,两者之间可开可合,打开时书房电脑与客厅电视联动,享受游戏的快乐,关闭时是独立的书房或客卧,机动又灵活。④将一楼双阳台的移门全部拆除,其中客厅阳台纳入室内,增加使用面积与空间感;书房与阳台之间则用大大的落地窗代替,方便引光入室。而原来位于两个移门之间的墙垛,因是承重结构无法拆除,通过木饰面包裹加以化解。
⑤二楼全部是休息区,房间的功能布局根据小业主夫妻的生活习惯来规划。主卧采用的是套房布局,包含睡眠、沐浴、收纳、梳妆、休闲等多个功能,方便又舒适。#清水江南零投诉##清水江南满意度高达97.6%#
#苏州清水江南怎么样##清水江南装饰零投诉#
清水江南,系全国装饰百强企业、苏州市装饰业商会副会长单位,始创于2004年,专业从事家装住宅的设计与施工,公司始终秉承“做可靠人 办可靠事”的企业精神和“苛求品质 不负所托”的经营理念,拥有稳健的管理体系,创新的商业模式,优秀的行业人才。公司主营的别墅整装模式倍受消费者的青睐,交付成品好评如潮,行业主管单位多次给予高度评价。清水江南多年来荣获了苏州市消费者满意单位称号、苏州市零投诉企业、苏州市诚信标杆企业、苏州市最具影响力品牌、苏州市家居行业领军品牌等荣誉称号。客服热线:67866888

