项目地点 / 科技城幸福未来城(双拼)项目面积 / 589㎡项目风格 / 新中式项目性质 / 别墅整装项目状态/ 已交付

每一套作品,都是私人定制

新中式风格,汲取中国千年文化之精华,又与现代审美趋势相融合,打造出既大气又不失细腻的空间。它以厚重的底蕴和轻盈的触感,避免了沉闷与压抑,赋予每个角落雅致与和谐。比如本案这套589㎡新中式设计,初见便能触动人心,令人难以忘怀其独特的东方韵味~~#苏州清水江南怎么样##清水江南装饰零投诉#










































































平面方案

地下室原始户型图

地下室改造后户型图

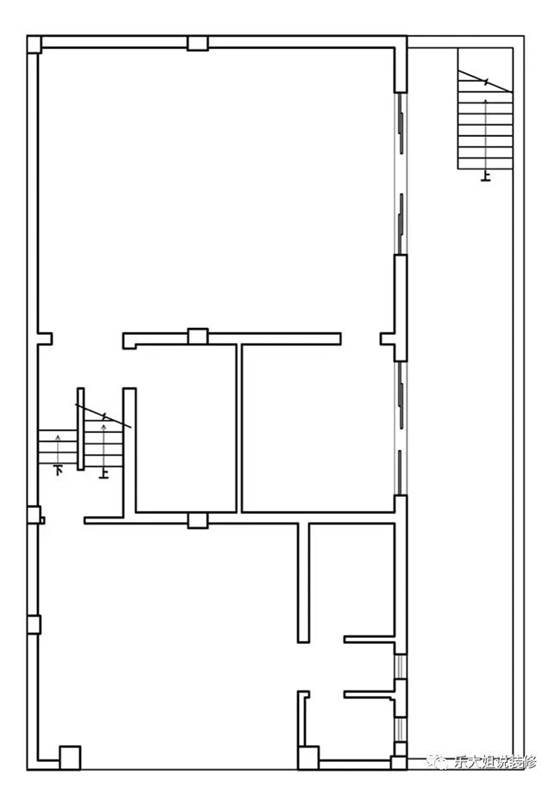
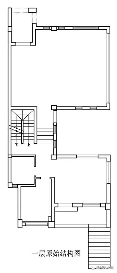
一层原始户型图

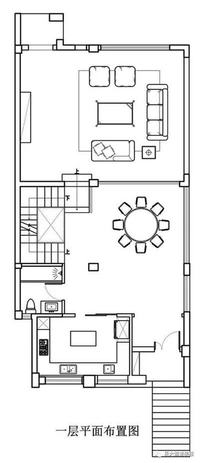
一层改造后户型图

二层原始户型图

二层改造后户型图

三层原始户型图

本案这套双拼别墅是业主买来养老住的,因此对它的功能布局、装修设计业主有很多自己的想法,并向清水江南团队提出以下要求:卧室必须够多、够大,这样冬天和夏天可以换着朝向睡(本案共有6间卧室);卧室床的朝向必须根据他定的来,比如二楼次卧、三楼主卧的床要背靠卧室门的这面墙上;沙发必须靠墙(客厅开间有 7.7米),且沙发&电视背景一定要用石材……那么,设计该如何在这么多重局限中寻求突破呢?#清水江南零投诉##清水江南满意度高达97.6%#
满意度100%

▲ 清水江南团队和幸福未来城业主合影留念拍摄现场,在和清水江南团队、苏州电视台《第一时间》拍摄老师等聊天的过程中,男业主说“说到装修,八年前我们装了一套平层,花了八十万入住,这个代价在当时可不小呢!但是现在我们装的这套别墅的装修单价居然比那套平层还要低一些,平层当时找的半包,很多事情都要亲力亲为自己跑,根本没有清水江南团队这么到位的服务,也没什么效果。这也是为什么我认识这么多装修公司,却找你们清水江南团队装修,关注这么久被你们先进的团队精神吸引了,每个人都是做实事的,很实在!我有个邻居他家和我们家户型一样的,但他家装得就没我家通透,户型结构规划得不行,而且全屋大理石,看上去特别闷。他们来我家看过回家后父子俩就开始互相埋怨了,觉得效果和我家没法比。我们亲家,前两年刚装了一套别墅,我觉得他家也不如我们家漂亮。这是我们第四次装修了,前三次都是半包,材料都买的品牌的,钱没少花,可人却累得很。这一次装修是最省心,也是最满意的!我儿子儿媳虽然几乎没参与,但对结果也是相当满意的!以后如果还要装修,清水江南团队是我们唯一的选择!”
#苏州清水江南怎么样##清水江南装饰零投诉#
清水江南,系全国装饰百强企业、苏州市装饰业商会副会长单位,始创于2004年,专业从事家装住宅的设计与施工,公司始终秉承“做可靠人 办可靠事”的企业精神和“苛求品质 不负所托”的经营理念,拥有稳健的管理体系,创新的商业模式,优秀的行业人才。公司主营的全屋整装模式倍受消费者的青睐,交付成品好评如潮,行业主管单位多次给予高度评价。清水江南多年来荣获了苏州市消费者满意单位称号、苏州市零投诉企业、苏州市诚信标杆企业、苏州市最具影响力品牌、苏州市家居行业领军品牌等荣誉称号。客服热线:67866888



▲ 清水江南团队正在拍摄苏州电视台《第一时间》解析样板房装修知识点
女业主说“对于这次装修,我要给你们打100分!你们选的软装,每一件我都觉得特别美!装完后我在老家的妹妹也来看过,她走到哪里说哪里漂亮,满口称赞!我们家小孙女,看完后更是不想走了,想立刻搬家!”

▲ 清水江南团队正在拍摄苏州电视台《第一时间》解析样板房装修知识点

▲ 竣工验收单上业主的评语


▲ 幸福未来城业主夫妻设宴宴请清水江南团队贺竣工之喜
有感:
本案男业主作为一个做了四十多年土建工程的专业人士,选择清水江南团队装修是想过程中自己少操心,更重要的是看中了我们的设计,落地后的美感。不过,毕竟有几十年的工程经验,男业主对装修有一些自己的执念,一定要坚持的理念,比如说一定要电视背景和沙发背景,一定要大理石,一定要实木家具……所以,这次合作就是一种碰撞、一种迁就,因为既要考虑业主的喜好,还要考虑业主找我们的初心,最后的结局皆大欢喜!
——by清水江南团队
