项目地点:新区山云庭(下叠)
项目面积:243㎡
项目风格:意式轻奢
项目性质:别墅整装
项目状态:正在施工
写在前面的话
The Words Written In Front
本案这套下叠墅属于改善型住房,业主一家三代同堂,计划未来在此长久居住,对装修的效果和品质要求很高。所以,经朋友介绍,找到清水江南团队,属于又一套老客户转介绍项目。设计上,业主提出家中常住人口较多,需要至少5个房间;亲朋好友经常来家里聚会,要有档次。故,清水江南团队将整个地下室打造成了会客空间,并通过意式轻奢的手法,营造出低调而奢华的豪宅体验。而地上两层,则以居住功能为主,色调清新自然,舒适度很高。




归家的第一步,从充满仪式感的地下会客厅开始。整个空间大气奢华,又不失摩登时尚。大理石的贵气、木饰面的内敛、皮革的柔软、金属的奢华叠加雅致的色调、流畅的线条、挑高的结构,凝练出高奢的空间气质,奢而不华,丽而不浮。
同时,地下室集品酒、观影、会客、休闲、阅读、办公等多功能于一体,且彼此既相互渗透又各自独立,动静两宜。丰富多彩的生活场景,使地下变成了私人会所,成了亲朋好友相聚的理想之地,或许这才是奢华的真正意义。#苏州清水江南怎么样##清水江南装饰零投诉#



而设计之所以在地下室如此地浓墨重彩,皆因本案常住人口较多,地上规划完5个卧室后就没有待客空间了。为此,设计老师颠覆传统设计思维,将会客厅下沉至地下,用恢弘大气的地下豪宅回应业主一家对品质生活的追求!


在这个地下空间,特意保留的层高高达 4.5m的挑高和无限连纹仿大理石岩板、花瓣造型的夹层看台、时尚通透的茶玻相生相融,共同构成抢眼的存在,奢华大气之感就此而生。
直线和曲线的碰撞,光与影的交织,色彩与质感的选配,赋予整个空间丰富却和谐的层次感,为居者带来全新的感官体验。



地下夹层的设计,也不走寻常路。形似花儿的异形结构,不止最大化地利用了空间,增加了面积,还丝毫不影响挑高空间带来的纵深感、大气感,关键的是微妙的结构细节反射出空间内化的灵动与多变,功能与美观兼得。#清水江南装饰零投诉#、#苏州清水江南怎么样#



一览无余的恢弘气势和如同盛开的花儿般的流线,为书房带来开阔的视野和静谧的氛围,给予工作学习抑或独处思考的时间。地下天井引入了自然光的柔和笔触,捕捉着外界光影的涟漪,短暂停留,沉思与启发。




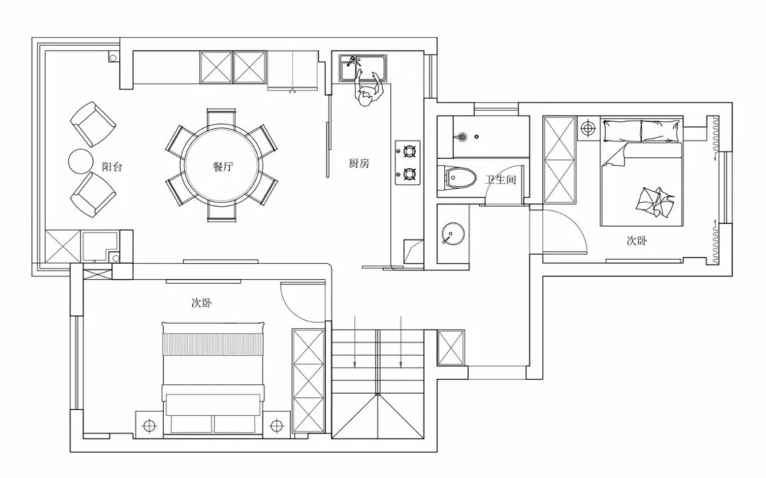
一楼的空间布局,一反常规,开阔的大横厅被分割成了两个独立空间——餐厅+老人房,而之所以如此设计皆因本案是三世同堂,需要至少5个卧室,故将客厅下沉至地下。厨房拆墙改移门的处理,则弥补了户型改造带来的空间感不足,优化了餐厨的采光和通透性。
由此可知,方案需因人而异,量身定制。



因家中常住人口较多,餐厅选配了圆形的餐桌,而顶面的圆形吊顶、圆形出风口则与之形成呼应,寓意团团圆圆。配色上以高级灰为基底,给人一种沉着冷静的质感,波纹镜面的质地,映射出低调的奢华。




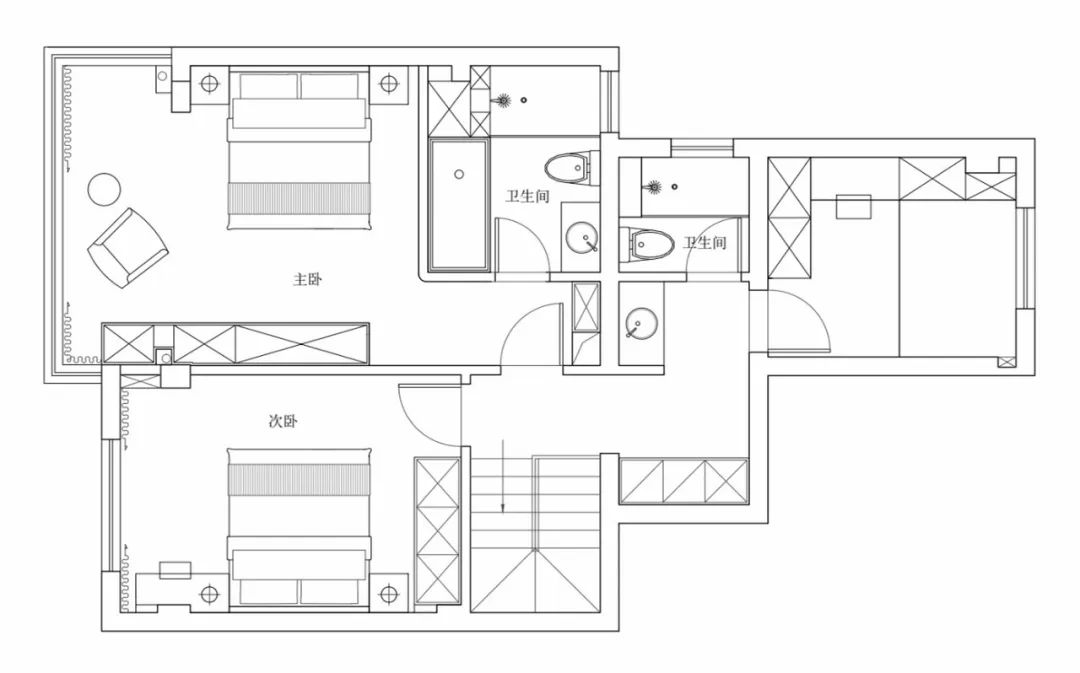
进入主卧室内,聚拢的布局给人以归属感,不必周折,功能与美观皆在掌握。
整体以哑光鱼肚白为主调,如诗如画,演绎时尚雅奢新生活。木质、金属细节点缀其间,与灰调空间形成优雅对比,犹如狮山畔的月光,静谧而温柔。#清水江南零投诉##清水江南满意度高达97.6%#

每日清晨,坐在窗前的单椅上,阳光如诗,山景如画,自然与生活的完美融合,唤醒每一天的美好。



主卫,在原本突兀的承重结构两侧分别设置壁龛,增加空间收纳的同时,将实用与美观融为一体,让空间变得更精炼。不同材质的叠加与缩放,传达出卫生间简约精致的个性,与低调的优雅不期而遇。




二楼南次卧是大女儿房,洋溢着时尚雅致的气息。浅色系的基调,营造出静谧舒适的氛围。而粉色、绿色、木质的点缀,又让整个空间弥漫着青春与活力。

床头一侧设置的学习区,打破了常规,不止实现了书桌和床头柜的双功能,还颜值、收纳双在线。



二楼北次卧是小女儿房,因面积较小,设计通过榻榻米+衣帽柜+书桌的组合将空间利用到极致,可爱的粉色和优雅的灰白装饰又透出孩子的纯真与美好。#苏州清水江南怎么样##清水江南装饰零投诉#




两个长辈房都被规划在了一楼,老人进出更加方便。整个空间设计层次分明,集优雅、朴素、雅致于一体。亚麻灰的布艺质感搭配浅灰系墙纸,营造出沉稳静心的氛围感,让人不自觉地就摒弃浮躁,舒缓身心。
平面方案
Flat Plan

地下二层原始户型图
地下二层改造后户型图

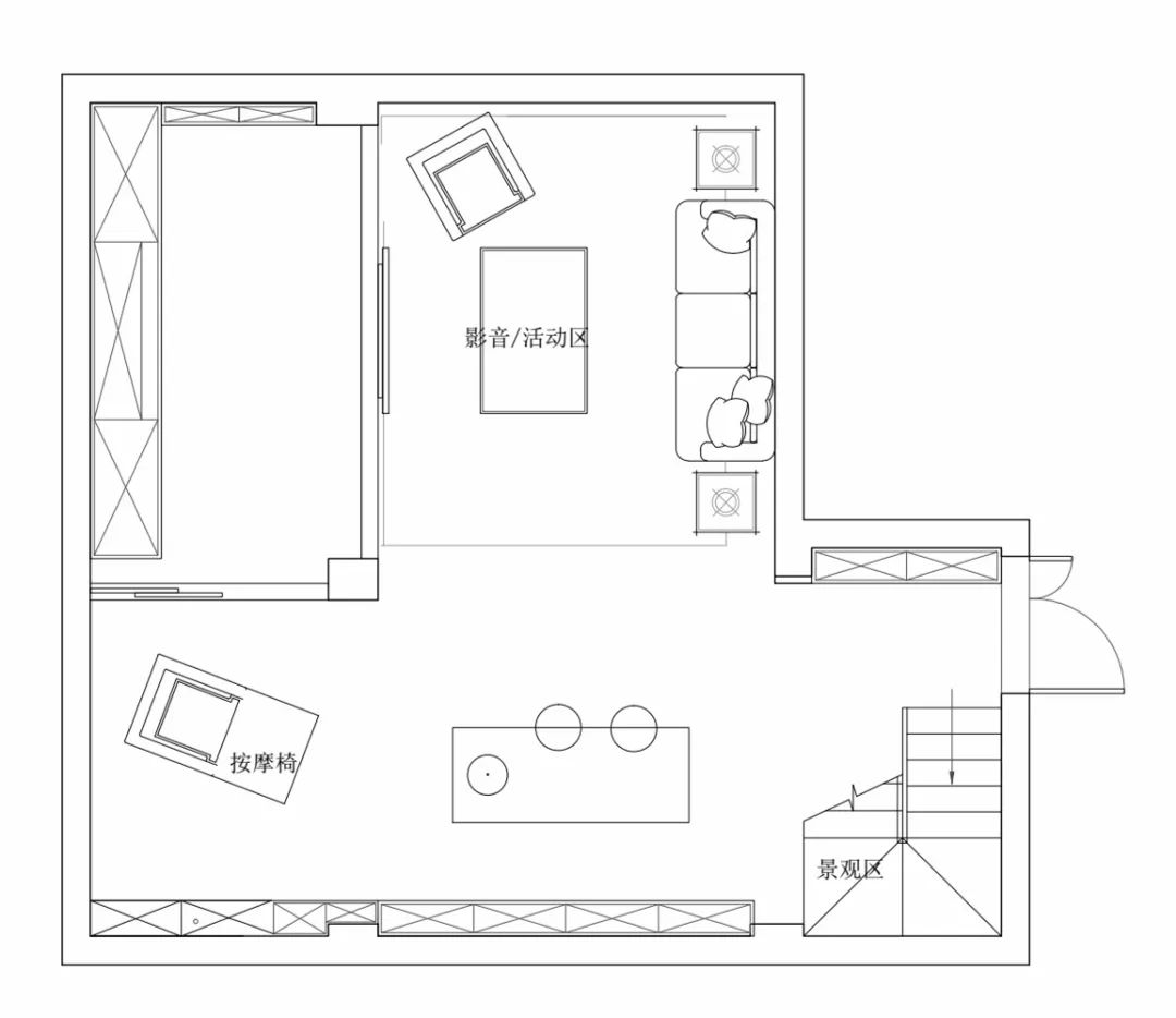
地下一层改造后户型图

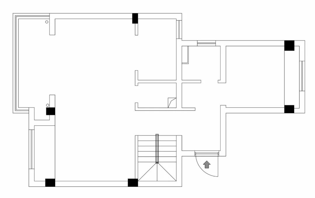
一层原始户型图

一层改造后户型图

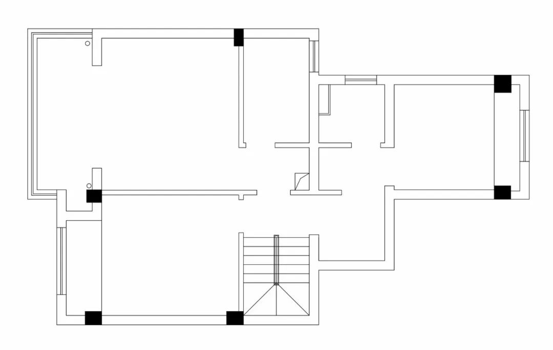
二层原始户型图

二层改造后户型图
① 本案地下室是层高高达4.5m的挑高空间,为了增加功能和使用面积,将之一分为二,地下二层打造成了集会客厅、酒吧台、展示柜等于一体的休闲空间,地下一层则设置了书房。同时,还保留了部分挑高空间,营造大宅的奢华感。②本案地下入户与楼梯间的功能是重合的,但楼梯间是一个封闭的空间,很局促压抑,故设计时将楼梯非必要的非承重实墙全部拆除,从而使入户空间变得开阔又通透。③为了营造挑高会客厅的奢华气场,将储藏室的门从朝东改至朝南,原来的门则全部封起来打造成了一面高达4.5m的岩板背景墙,气势非凡。④因家中常住人口较多,把一楼原本的大横厅一分为二,一部分规划成餐厅,一部分设计成父母房。⑤将原有的餐厅与厨房合并,打造成一个大厨房,增加操作空间及舒适度。同时,利用移门代替非必要的非承重墙,优化采光,增加空间的通透性。
#苏州清水江南怎么样##清水江南装饰零投诉#
清水江南,系全国装饰百强企业、苏州市装饰业商会副会长单位,始创于2004年,专业从事家装住宅的设计与施工,公司始终秉承“做可靠人 办可靠事”的企业精神和“苛求品质 不负所托”的经营理念,拥有稳健的管理体系,创新的商业模式,优秀的行业人才。公司主营的全屋整装模式倍受消费者的青睐,交付成品好评如潮,行业主管单位多次给予高度评价。清水江南多年来荣获了苏州市消费者满意单位称号、苏州市零投诉企业、苏州市诚信标杆企业、苏州市最具影响力品牌、苏州市家居行业领军品牌等荣誉称号。客服热线:67866888

