【乐大姐·经典案例解析】445㎡别墅升级改造,重焕新生!
发布时间:2026-03-09 20:33
作者:苏州本地生活
【导语】:乐大姐,多次受邀成为院校家居授课讲师;从事家装23年的装修达人;104.8“家在苏州”特约嘉宾;苏州电视家装栏目特邀嘉宾;98年至今,为万千家庭打造幸福家居同时,也相互成为了好朋友。任何与装修有关的问题,欢迎您添加乐大姐微信:13382100888,乐大姐会为您做一对一解答
项目地点:园区铜雀台
项目面积:341.6㎡+103.6㎡
项目风格:新中式
项目性质:局改+软装搭配
项目状态:正在施工
写在前面的话
The Words Written In Front
本案这套双拼别墅,原来是开发商打造的样板间,业主将其买下来作为一家三代同堂的改善居所。因要长久自住,业主希望一切都合乎家人们的心意。然而,原装修效果虽不错,但在结构、设计上有些地方业主并不喜欢,所以找到关注已久的乐大姐团队,希望在保留大部分现场的基础上,进行局部改造升级:
拆除过度装饰的元素,比如屏风,释放空间感,避免压抑沉闷;
取消环抱式电梯,改为旋转式楼梯设计,减弱拥堵感的同时,更具美感;
在楼梯侧墙上新开门洞,增设玻璃窗,引光入内,通透又明亮;
虽保留了原有的新中式风格,但在卧室区根据每个家庭成员的年龄喜好不同,打造了不同风格……#乐大姐说装修##装修不烦大姐来谈#





局改+软装搭配,其实是一个不断提高生活品质、取悦自己的过程,在硬装不大动的基础上,用局部调整&软装进行颠覆性的改造,平庸到华丽,凑合到合乎心意,转身进入NEXT LEVEL。本案作为开发商打造的样板间,原装修档次较高,故改造时许多经典的元素和内饰被保留了下来,包括奢感十足的吊顶、带有中式线条的背景、地砖等等,搭配大大的落地窗,给人一种跨越时空的东方诗意美感。



然而,原客餐厅之间设有装饰隔断,将整个大横厅一分为二,给人感觉空间很是局促压抑。故,设计时将之取消,让客餐厅恢复其原本应有的开阔大横厅格局。加上客厅6.3m的层高,整个空间变得既大气挺拔又开阔舒朗。当人们漫步于客厅,落座于餐厅,轻柔的微风拂过空间的每一寸,光影的细节定格着生活的日常,一切是那么的宽广自由,内蕴诗意。


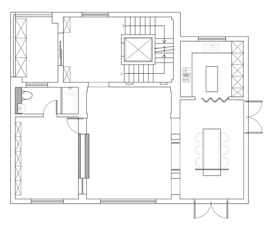
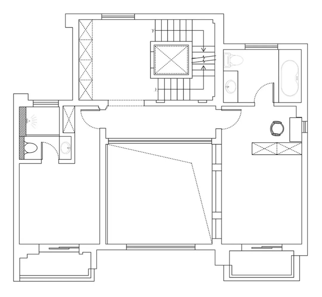
楼梯,是本案改造的重点。原设计中楼梯是环抱着电梯的,加上客厅北面的实墙阻挡了所有的光线,使楼梯间完全成为一个暗区,既沉闷又昏暗,业主非常不喜欢。
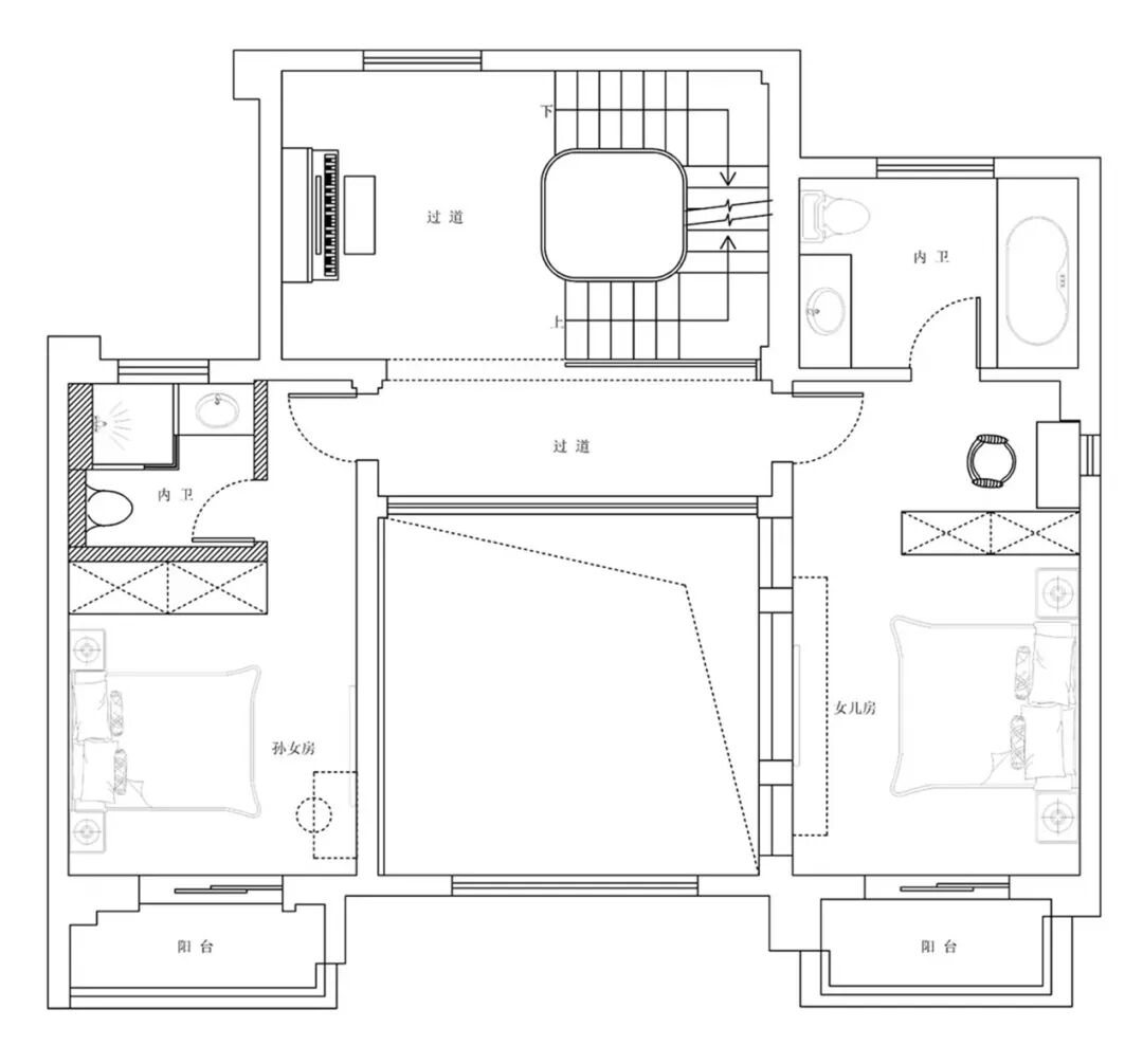
为此,改造时将电梯取消,楼梯踏步换成了明亮的白色系,搭配旋转的扶手设计、侧墙上新开的玻璃隔断,整个楼梯间瞬间焕然一新,既明亮通透,又别具美感。




二楼总共设有两个套房,东南角的是女儿女婿的卧房。业主提出要将原有的美式家具带过来,可原房间的风格却是中式的,为此设计做了大胆而细致的改造。将原本的灰色柜门更换为白色线条勾勒的美式款,将原本沉稳的中式背景改造成优雅时尚的美式造型,从线条到元素再到色彩,全方位地打造出一个浪漫而典雅的美式卧室,让再利用的老家具得以毫无违和感地融入进来。





另一间是孙女房,不论是设计还是户型都做了较大的改造。设计上,女孩上高中了,正值青春叛逆期,家长最初为其选择了温柔治愈的法式奶油风,但小姑娘有自己的想法,更喜欢酷酷的黑白灰,但家人不希望卧室过于沉闷压抑。故,设计老师为其量身打造了浅色系的简约风,又以深色系进行穿插,干净的用色、利落的线条甚得女孩的喜欢,父母也很是认可,皆大欢喜。#乐大姐##13382100888#


户型上,原内卫的门开在南墙,正对着床,业主比较忌讳,故将卫生间的门改至东墙,并依着南墙打造了一组衣帽柜,这样既解决了结构难题,又增加了收纳功能,一举两得。



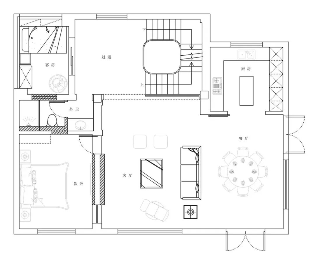
设计,需因人而异,量身定制。原样板房三楼整层都是套房设计,但因本案居住人口较多,三楼要住老人和她的小孙孙,故格局做了很大的调整。其中,原书房+过道被改造成了母亲房,为长辈提供了一个温暖而私密的小套房,同时还将过道的柜子纳入了进来,丰富了卧室的收纳功能。且过道的窗户,也成了室内的一部分,南北通透,舒适度极高,老太太非常喜欢。


床背后的柜体是原书房的,业主希望能保留再利用。为此,乐大姐团队设计老师将柜体的底色从原来的灰色改成了粉紫色,色彩的变化让柜体焕发新生的同时,也为卧室增添了一抹温暖高贵的气息,与居者、环境更为契合。
此外,搭配上业主精心挑选的功能床,深浅色的对比,进一步增强了空间的层次感,显得稳重而大气,典雅且温馨。



原三楼大套房的卧室区,则被规划成了孙子房。这里的风格是全新打造的,根据小朋友的年龄和喜好定制的现代风。房间内采用了蓝色与灰色的搭配,营造出既清爽又温馨的氛围。一体化的柜体设计,满足了多样化的功能需求。




三楼卫生间重新做了规划,面积虽有所缩减,但新增了水吧台和梳妆区,使得空间功能更加完善。
考虑到三楼是老人和小朋友居住,卫生间地面铺设了哑光砖,这种材质具有良好的防滑效果,确保了使用的安全性。浴缸区域(原有再利用)通过大面积花砖巧妙地实现了区域的划分,自然而清新的花色令人眼前一亮。#乐大姐装修##乐大姐团队#





一楼的卧室,是给老太太准备的备用卧房。临时乏了或以后年纪大了,就可在此休憩。相对于三楼,这里更具诗意柔情。
床头背景上的圆形山水造型和回字纹浮雕,营造出一种独属于东方的浪漫氛围。而高背床的设计不仅提供了额外的支撑和舒适感,也增添了一抹古典的韵味。





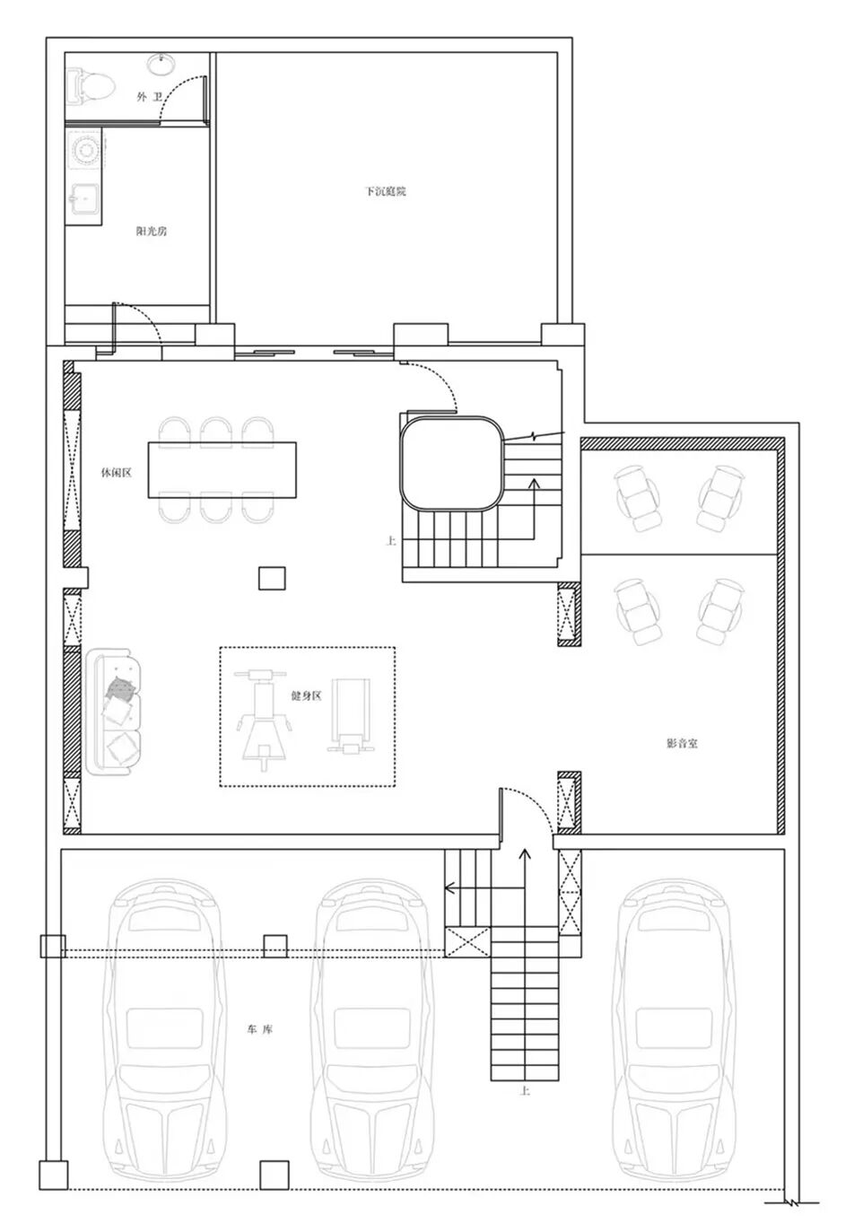
鉴于地下室原样板房装修档次不错,故基本予以保留。但考虑到地下室的空间、采光有限,将地下室进门左侧的墙体,由原来的木饰面硬包改造成一整面镜子,从而极大提升了整个空间的视觉延伸感,使地下室更为开阔明亮,也让地下休闲健身功能明确化,增加实用性。


影音室里,响应业主对星空氛围的向往,特别在天花板上增加了星空顶的装饰,如此不止增强了观影时的沉浸感,更让人仿佛置身于繁星点缀的夜空之下,享受着非凡的观影体验。


这里,是地下入户后的第一视角。首先映入眼帘的是改造后的旋转楼梯,其优雅的弧线、通透的结构以及垂落而下的灯饰,共同构成了一幅极具美感的画面,动人心弦,成为整个空间的焦点。中式端景,以其宁静而雅致的造型迎接着每一位来客,让人在踏入这个空间的瞬间,就能感受到一种东方的宁静与和谐。
平面方案
Flat Plan

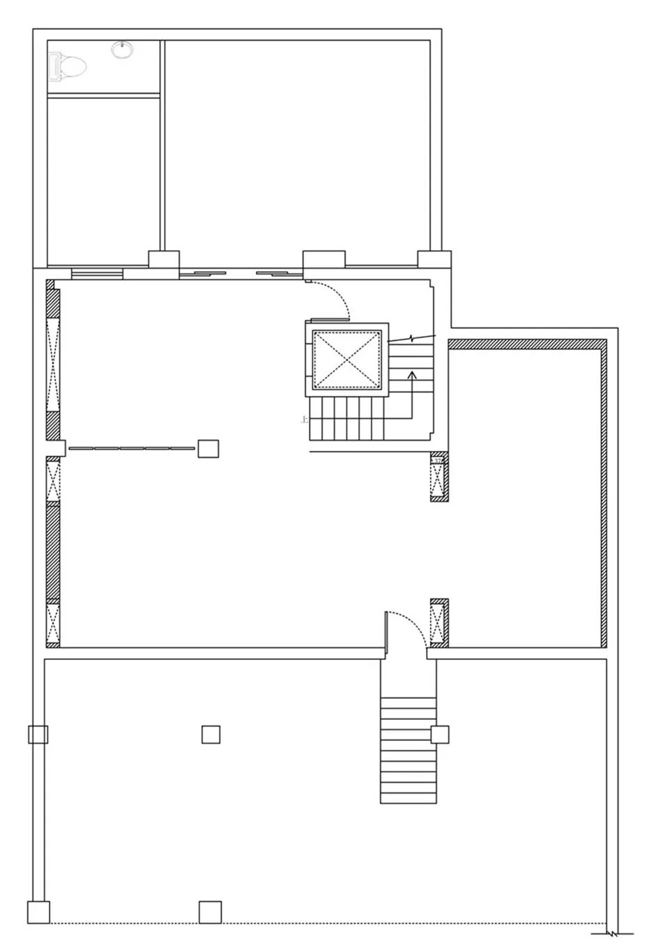
地下室原始户型图

地下室改造后户型图

一楼原始户型图

一楼改造后户型图

二楼原始户型图

二楼改造后户型图

三楼原始户型图

三楼改造后户型图
本案这套双拼别墅升级改造的重点,在于提升空间感和实用性:
①取消了电梯,楼梯做了旋转处理,这样不仅释放了空间,还增添了视觉美感,使楼梯成为家中的一道亮丽风景。同时,将楼梯与客厅相邻的门洞扩大,并在侧墙上新开了一个门洞做室内窗,以引入更多的自然光,使楼梯区域从原来的暗区变得通透又敞亮。
②考虑到一楼仅次卧有一个卫生间,将其改造为外卫,以提高空间的利用率和便利性。
③二楼孙女卫生间的门正对着床,比较尴尬,为此调整卫生间的布局,将开门改至过道。
④因家中居住人口较多,将三楼原本的大套房,改造成了母亲房+孙子房,以满足更多居住需求。
#乐大姐装修##乐大姐#
乐大姐
多次受邀成为院校家居授课讲师;
从事家装23年的装修达人;
104.8“家在苏州”特约嘉宾;
苏州电视家装栏目特邀嘉宾;
98年至今,
为万千家庭打造幸福家居同时,也相互成为了好朋友。
任何与装修有关的问题,欢迎您添加乐大姐微信:13382100888,
乐大姐会为您做一对一解答。


苏州电视台《第一时间》栏目中
直播:五套每周三、周五21:36
重播:三套23:08 二套7:10 次日一套17:27
苏州交通广播FM104.8《家在苏州》栏目
每周一、三、五11:30与您相约